Гараж, > 30 м²

140 000руб.

Характеристики

  • Общая площадь: > 30 м²

Описание

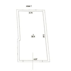
ПРОДАМ гараж на стройке общество № 5 за магазином "Стройматериалы" . Площадь 30.4 кв.м.
Линейные размеры сторон и конфигурацию смотрите на плане. Гараж в собственности, документы готовы.

Адрес

Красноярский край, Ачинск


Сеть городских порталов: Купить квартиру в Тюмени